Integral Garage Conversion & Single Storey Infill Extension
Our clients dreamed of a bigger, brighter home but weren’t sure whether to go for a single or double-storey extension. They needed expert guidance to make the right decision. Through our in-house Feasibility Study, we explored both options, helping them see the possibilities and choose the perfect solution – a garage conversion with infill single-storey extension that would transform their home without unnecessary cost or disruption.
The Brief
The homeowners wanted more than just extra square footage – they envisioned a home that flowed beautifully and worked effortlessly for their lifestyle. Their dream was a spacious, light-filled kitchen, a dedicated music room, and an open-plan living area that was practical yet welcoming. They wanted a design that not only looked stunning but also enhanced how they lived every day.
The Solution
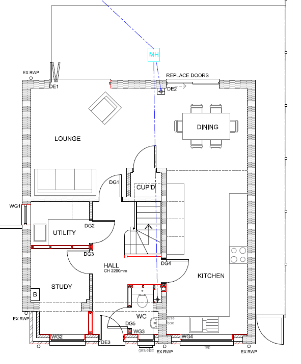
Our approach was simple – make the most of what was already there while enhancing the home with thoughtful new spaces. The underused garage became a stunning new kitchen, seamlessly integrated with the rest of the home. A cleverly designed single-storey infill extension allowed us to create a much-needed downstairs toilet, a larger study/music room, and a utility room. Every inch of space was maximised to create a stylish yet functional layout that suited the client’s needs perfectly.
The Results
The transformation was nothing short of remarkable. The brand-new, larger kitchen now flows effortlessly into the lounge and dining area, creating a sleek yet cosy entertaining space. Crittall-style internal doors were added, flooding the ground floor with natural light and making every room feel bright and inviting.
To complete the look, stunning Karndean herringbone flooring was fitted, adding warmth and character while ensuring a seamless transition from the hallway to the open-plan living area. The result? A home that not only looks beautiful but also enhances everyday living in every possible way.
What was once an underutilised garage is now the heart of the home – a stylish and functional kitchen, designed and installed by Kitchen Ergonomics. The clients now have ample storage, a cosy breakfast bar, and everything they need to enjoy cooking and entertaining in style.
But the transformation didn’t stop there – inspired by their newly improved space, the homeowners decided to upgrade their home’s entire aesthetic – swapping out the original 1990s brown windows for sleek, modern anthracite frames giving the property a fresh and contemporary edge.
