Stunning, Functional Kitchen Space
Our clients in Lower Stondon approached us for a complete re-vamp of their kitchen. They had previously used our services for a double-storey extension in 2008 and returned to us with a clear vision for their kitchen upgrade. Their existing kitchen felt restricted and lacked the functionality and flow they desired. The brief was to create a larger, more practical kitchen with a central island featuring seating for four and an integrated hob, in a breakfast bar style. They also wanted to remove the existing wooden balcony, which was underused and outdated, and replace it with a window to bring in plenty of natural light.
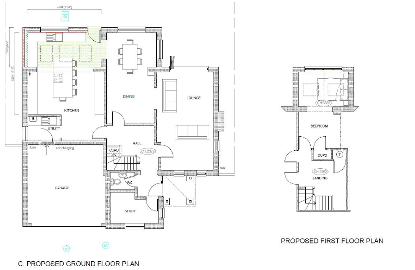
The Brief
The clients envisioned a spacious, modern kitchen that would serve as the heart of their home. They wanted a kitchen island that would not only provide ample seating but also function as a cooking and socialising hub. Maximising natural light was essential, so they hoped to incorporate rooflights to create a bright, airy feel. Additionally, they wanted to enhance the connection between the kitchen and dining space with a stylish arched doorway to create a seamless flow between the two areas.
The Solution
During the feasibility process, we explored and costed different options, helping the clients make a fully informed decision about the best scheme for their needs. They opted for a single-storey infill extension, which allowed us to create a larger kitchen area. We incorporated three rooflights to maximise natural light and replaced the old wooden balcony with a large window, improving both the aesthetic and the amount of daylight entering the space. The new arched doorway was carefully designed to align with the home’s style while enhancing the flow between the kitchen and dining area.

