Space to Grow – A Clever Garage Conversion
Our clients approached us looking for ways to improve how their home worked for their family. They didn’t want to move, but they needed more usable space and better flow between rooms. With a modest extension, they hoped to open up the ground floor and improve the overall feel of their home.
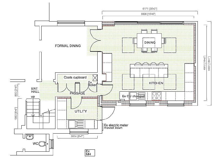
The Brief
The main goal was to create a larger, more connected living area at the rear of the property. The clients wanted a space that felt bright and open, where they could cook, eat, relax and spend time together as a family. Bringing more light into the home and improving access to the garden were also key objectives.
The Solution
We designed a rear extension that seamlessly tied in with the existing property, creating an open-plan layout that offered flexibility and comfort. Even with a relatively compact footprint, we were able to significantly improve the sense of space by opening up internal walls and introducing wide patio doors to let in more natural light.
Our team handled the project from concept to completion, including planning applications, structural adjustments, and the final build. The result was a practical yet inviting space that made a real difference to everyday life.
The Results
The finished extension gave the clients a new central hub for family life. A kitchen/dining/living space that feels bright, modern and sociable. The improved flow and better connection to the garden transformed how they use their home, both day to day and when entertaining.
It’s a great example of how even modest extensions can have a big impact when well planned and beautifully executed.
Want to Transform Your Home?
Whether you’re considering an extension, a conversion, or a complete transformation, we’re here to make it happen. Get in touch today and let’s bring your vision to life!
